Een speelse compositie van dichte volumes en glazen incisies

JAAR: 2021-2025

PLAATS: Santpoort-Zuid

PROGRAMMA: Woonhuis

BVO: 350 m2

STATUS: Gerealiseerd

FOTO CREDITS: Lucas van der Wee, Sven Benjamins

DE VRAAG

Heleen & Roeland hadden een fantastische plek in de duinen van Santpoort-Zuid bemachtigd. Een kavel met grote hoogteverschillen en veel bomen, waar ze voor hun jonge gezin een huis wilden bouwen dat écht bij hen paste. Ze hadden duidelijke wensen; kernwoorden waren natuurlijk, zonnig, speels, warm, onderhoudsarm, duurzaam, open, loftig maar gezellig. Ze wilden geen ‘standaard villa’, maar een hoogstaand en verrassend ontwerp. “Ga all out, u bent gebouwkunstenaar” – dat hoef je ons geen twee keer te zeggen!

De vraag was niet zomaar een huis — het was een uitnodiging om samen iets bijzonders te maken.

In dit project kreeg BRANDVRIES de kans om het ontwerp van exterieur en interieur integraal te benaderen. Van het eerste concept tot aan de laatste interieurdetails en de inrichting van de tuin; Villa Santpoort werd een totaalproject – doordacht en uitgewerkt van A tot Z.


HET PROCES

Bijzonder voor dit project was de betrokkenheid van de opdrachtgever. Niet alleen bij het ontwerpproces, maar ook in de uitvoering: Roeland nam zelf de rol van hoofdaannemer op zich. Als opdrachtgever en architect vormden we samen het bouwteam — een constructie die vroeg om intensieve afstemming, maar die het project ook iets unieks meegaf: echte gedeelde gedrevenheid.

De liefde die hierdoor in het project is gegaan, is voelbaar in elk detail.

En eerlijk gezegd: het was ook gewoon ontzettend leuk. In nauwe samenwerking toewerken naar een fantastisch eindresultaat; het soort teamwork waar wij blij van worden!

HET ONTWERP

Uitgangspunt voor het ontwerp vormde de duinachtige topografie van het kavel en de wens om binnen-buiten in elkaar over te laten lopen. Een betonnen plint komt omhoog uit de heuvel en vormt de basis waarop een licht houten volume rust dat past in het boomrijke landschap. Split-levels volgen de natuurlijke helling van het terrein en zorgen voor een woning met een speelse, vloeiende indeling.

Op verschillende manieren wordt gespeeld met semi-transparantie. Glazen incisies doorsnijden het houten volume, waardoor het gebouw minder massief wordt en er vele mooie zichlijnen naar buiten ontstaan. De glazen daken met houten lamellen creëren een voortdurend wisselend spel van licht en schaduw — op elk moment van de dag beleef je het huis net even anders. In de winter kan daglicht diep in de woning doordringen. In de zomer vormen de bladeren van de omringende bomen een natuurlijk zonnescherm, waardoor de woning aangenaam koel blijft.

Het huis ademt mee met de seizoenen — en nodigt je telkens opnieuw uit om het te ontdekken.

DOORDACHT TOT AAN HET DETAIL

Dit project kenmerkt zich door de aandacht voor hoogwaardige details, zowel binnen als buiten. De plasticiteit van de gevel is bepalend voor het karakter van de woning. Verdiepte houten ribben en vaste luiken geven de gevel diepte, ritme en een speelse kwaliteit. Slanke aluminium kozijnen in warme bruintint zorgen voor maximale glasoppervlakken. Ze komen ook binnen terug, met figuurglas dat wel licht maar geen zicht doorlaat.

Het interieur van de woning zit vol verrassingen. We zochten naar een warm en natuurlijk materialenpalet, zonder dat het braaf of voorspelbaar zou worden. Het gebruik van veel materialen met verschillende texturen zorgt ervoor dat het lichte huis nergens kil aanvoelt.

We hadden geluk met opdrachtgevers die durfden te kiezen voor bijzondere accenten. Het ontwerp krijgt een kek randje door verschillende kleurrijke details, dit was een echte co-creatie. Heleen kwam bijvoorbeeld zelf met een fantastisch roze bad voor in de slaapkamer — een idee dat meteen raak was. BRANDVRIES ontwierp er een zorgvuldig gedetailleerde donkere nis omheen, waardoor het bad als statement een eigen plekje kreeg.

- CONCEPT -

- FOTO'S INTERIEUR -

Eetkamer in Villa Santpoort gelegen in Santpoort-Zuid ontworpen door architectenbureau Brandvries

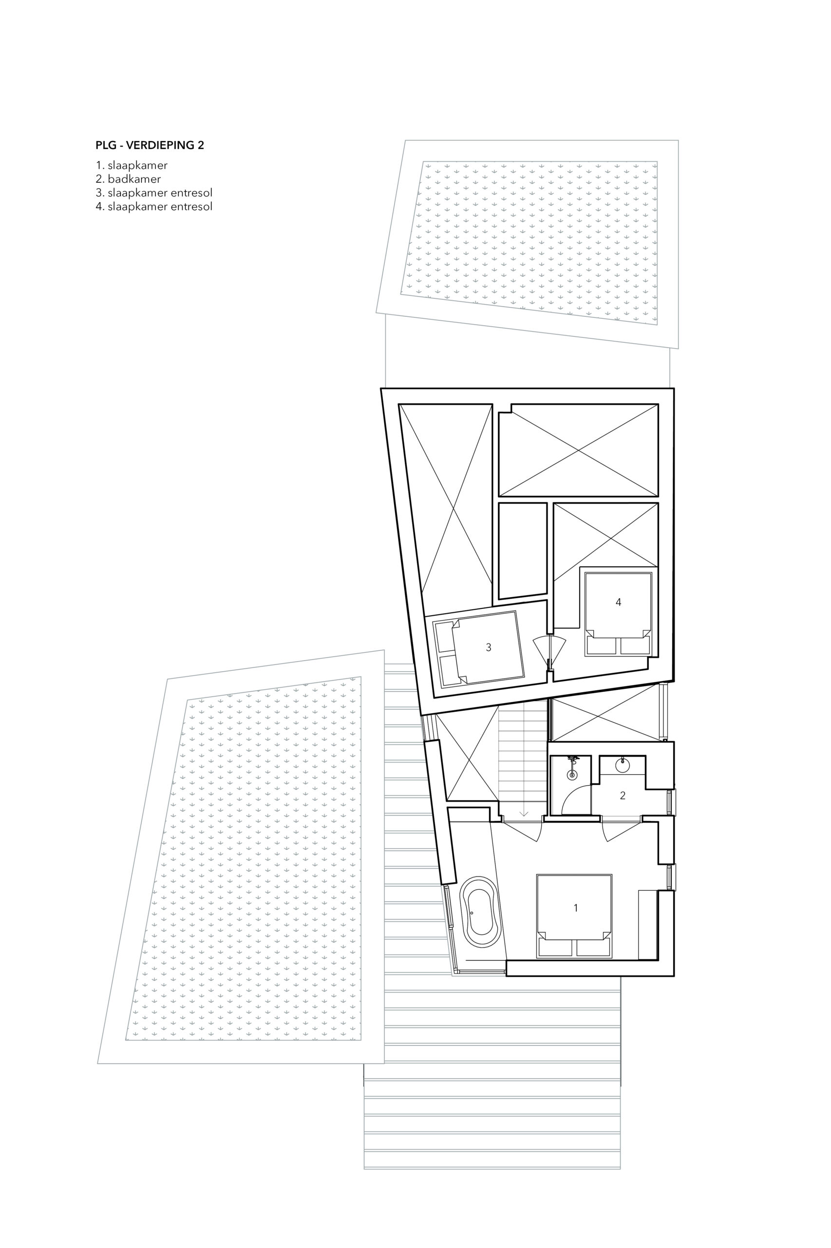
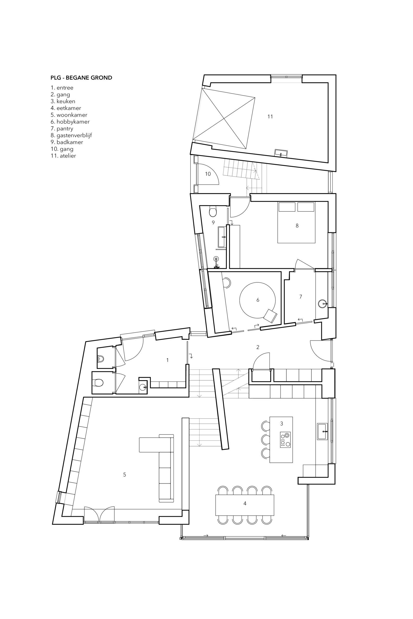
- TEKENINGEN -

- 3D IMPRESSIES EXTERIEUR -