Facelift voor een jaren '50 woning

JAAR: 2023-2024

PLAATS: Gouda

PROGRAMMA: Woonhuis

BVO: 180 m2

STATUS: Gerealiseerd

BOUWPARTNER: Renomeer B.V.

DE VRAAG

De bewoners van deze woning uit 1959 in Gouda zaten al een tijd met de gedachte dat ze niet meer blij waren met hun huis.

Ze wilden duurzamer, moderner, ruimtelijker en gewoon “iets nieuws”.

Een zoektocht naar nieuwbouwprojecten in de buurt liet hen gedesillusioneerd achter. Hoewel ze de hele bestaande woning eigenlijk al hadden afgeschreven, bleek de huidige locatie en ruime kavel moeilijk te evenaren. In eerste instantie was de vraag aan ons daarom een nieuwe woning te bouwen op de bestaande footprint.


HET PROCES

Sloop-nieuwbouw willen wij het liefst zo veel mogelijk voorkomen, het duurzaamste gebouw is immers een gebouw dat er al staat! BRANDVRIES stort zich graag op de uitdaging om te werken met het bestaande; hoe kun je zo veel mogelijk behouden en met slimme ingrepen toch veel verbeteren aan de beleving en uitstraling van een gebouw?

Hoewel ook de optie nieuwbouw ook is uitgewerkt, hebben we onze opdrachtgevers laten zien dat aan al hun wensen voldaan kon worden door voor “vernieuwbouw” van hun bestaande huis te gaan. Goedkoper én duurzamer!

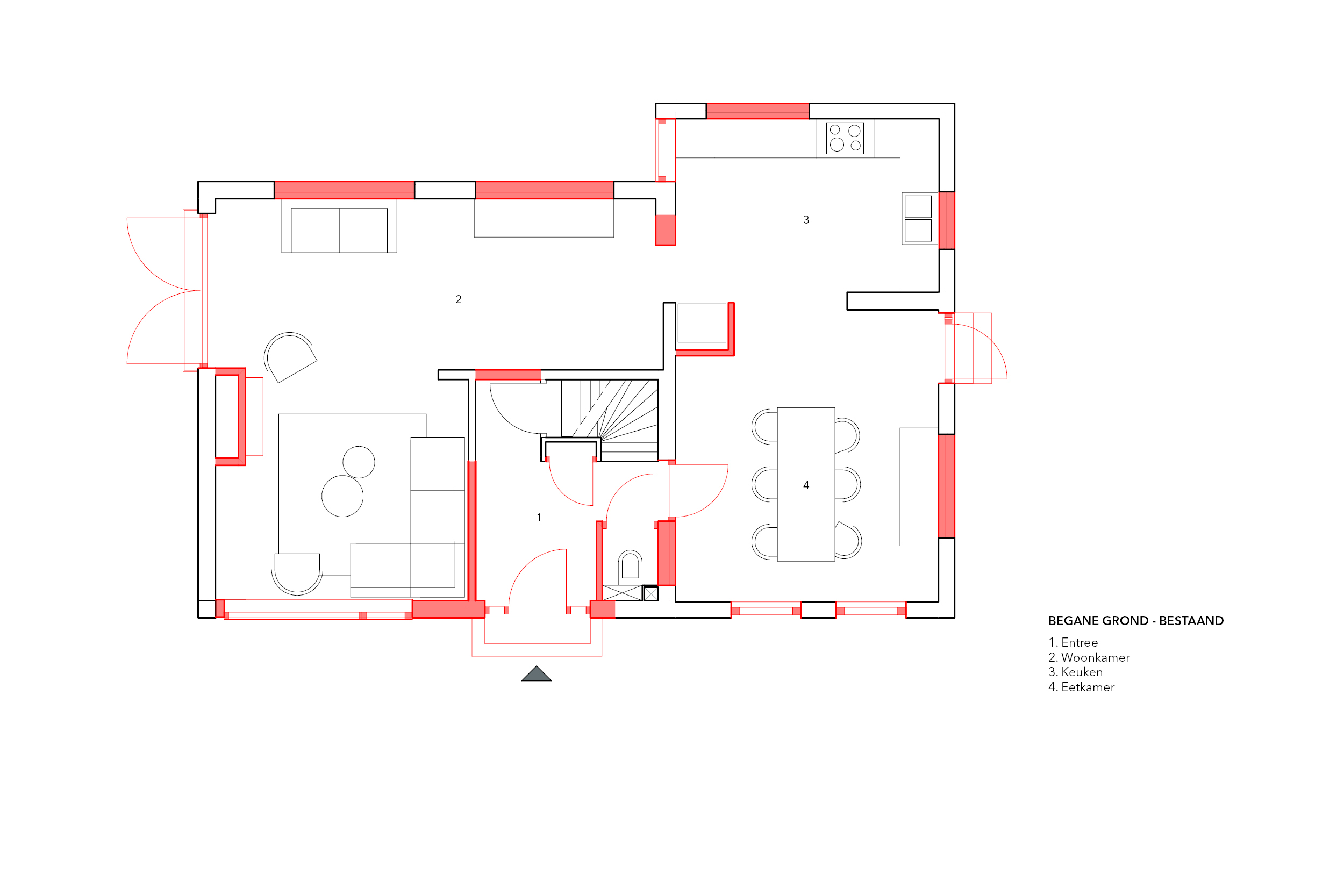
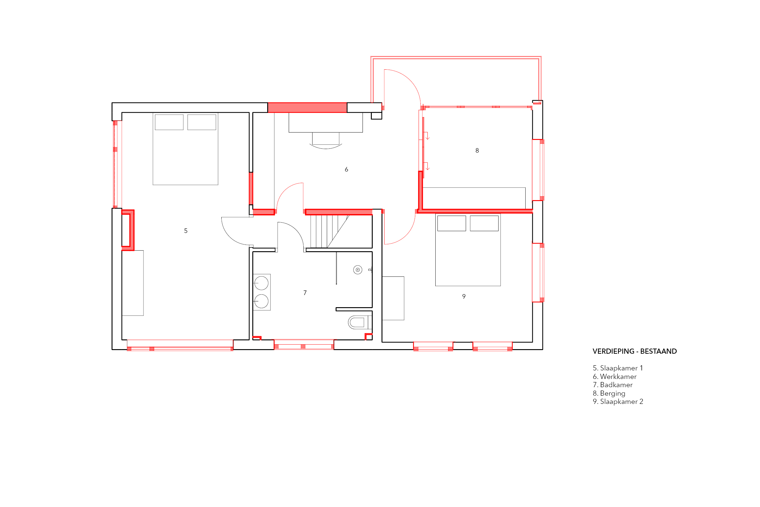
DE BESTAANDE PLEK

De woning kent een lange geschiedenis aan verbouwingen waardoor er een onlogische plattegrond is ontstaan. De bewoners misten de relatie met de tuin, gelegen op het zuiden aan de historische Voorwillenseweg. De oude voordeur ligt aan deze kant, maar door de stedelijke ontwikkeling van Goverwelle komt men nu aan op het kavel via de noordkant.

 

DE INGREPEN

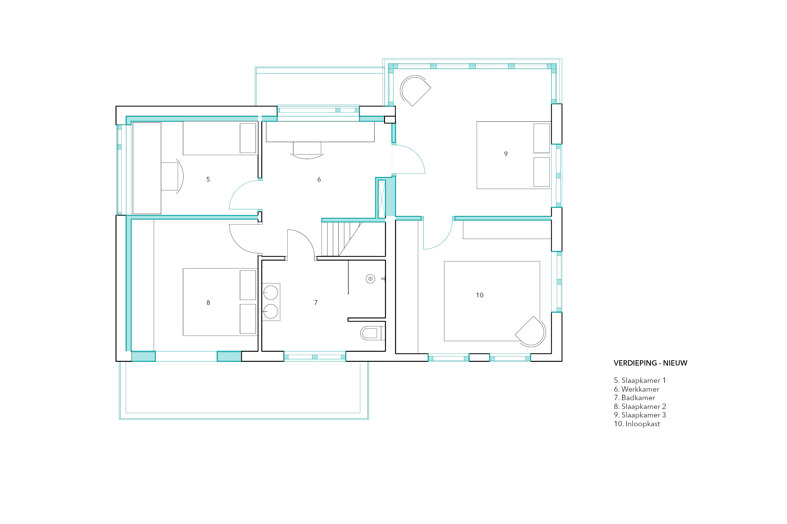
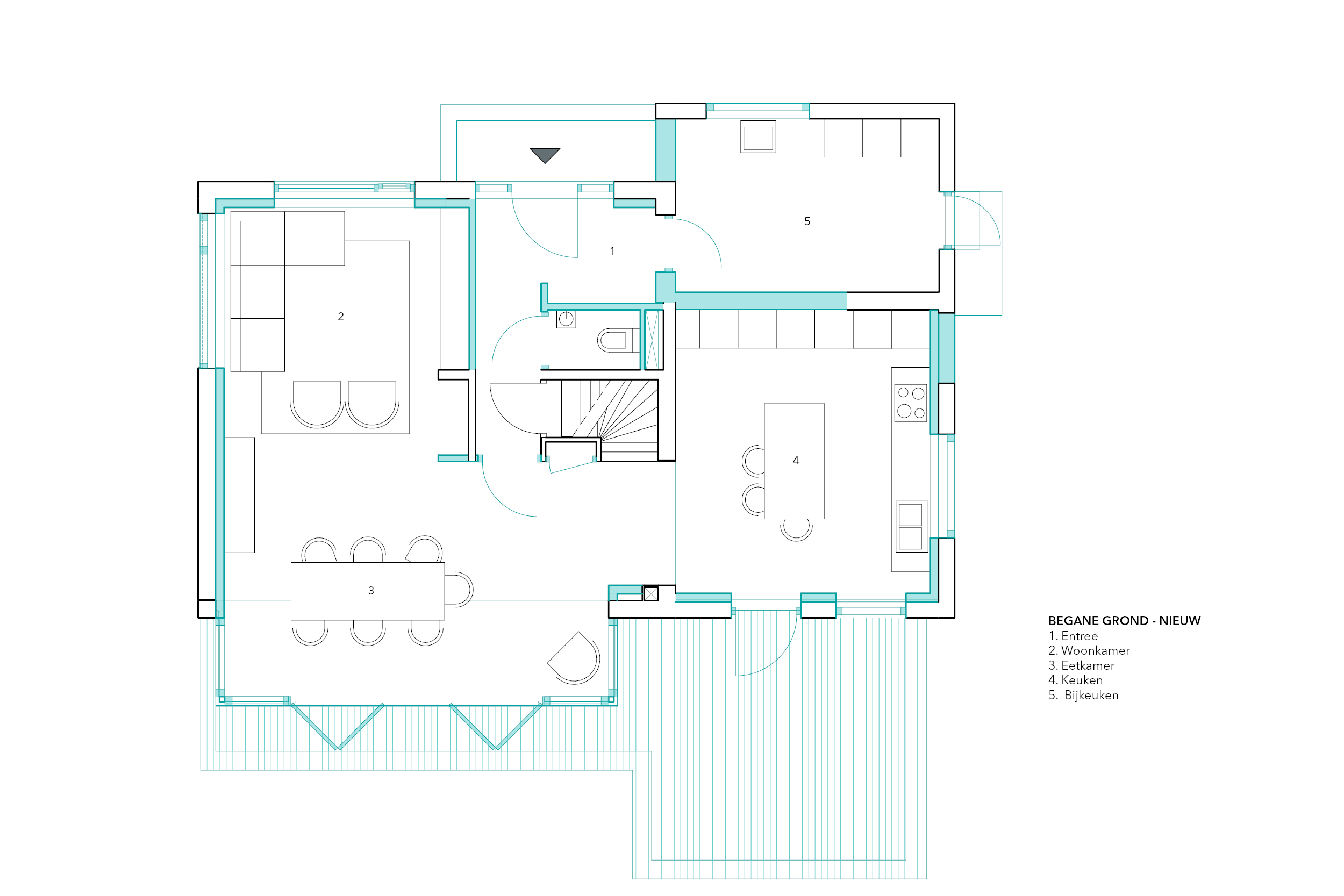
Door slim uit- en opbouwen en herstructureren van de interne organisatie, is de ruimtelijke beleving van de woning compleet getransformeerd.

De nieuwe plattegrond bestaat uit een logische schakeling van fijne vertrekken. Om meer verbinding te maken met de tuin op het zuiden, is aan deze kant een serre toegevoegd met een vouwpui die over de gehele breedte open gezet kan worden. De entree is verplaatst naar de noordkant, waardoor je nu logisch op de woning aan komt lopen. Door het ongebruikte balkon tot een erker te transformeren, is een royale master bedroom met wow-effect gemaakt.  De woning is hoogwaardig verduurzaamd en geheel van het gas af.

 

DOORDACHT TOT AAN HET DETAIL

Bij het herindelen van de plattegrond en gevel gingen we uit van de bestaande gevelopeningen. Ook het volume van de woning is nagenoeg hetzelfde gebleven. Op detailniveau is echter van alles veranderd, waardoor het huis toch een compleet ander gezicht gekregen. Nieuwe kozijnen, Fraké houten verticale geveldelen en de nieuwe, rechte dakranden geven de woning een strak en grafisch uiterlijk. Mooie details zorgen voor verfijning; de dakranden kregen een dubbel boeibord en de de gootoverstekken zijn eveneens met fraké afgetimmerd. De nieuwe entree is aangezet met een slanke stalen overkapping. Het zachte materialenpalet van warme grijs- en groentonen geeft het huis een frisse, maar zachte uitstraling.

- concept -

architecture concept building renovation timeline

- oude situatie -

- IMPRESSIES -

- PLATTEGRONDEN -