Slimme ingrepen op de juiste plek

JAAR: 2024-2025

PLAATS: Middelburg

PROGRAMMA: Woonhuis

BVO: 482 m2

STATUS: DO

DE VRAAG

Robert & Marjolein kochten een grote woonboerderij uit 1956, op een prachtig plekje met vrij uitzicht nabij Middelburg. Het gebouw ademt sfeer en had al veel mooie elementen, maar was slecht geïsoleerd en moest nodig gemoderniseerd worden. Het uitgangspunt hierbij was wel dat het verleden niet “uitgewist” hoeft te worden.

In de verbouwde woning mogen alle lagen van de geschiedenis zichtbaar zijn, op een mooie en fijne manier met elkaar verweven.

Vanwege het grote oppervlak van de woning zullen niet alle gedeeltes even intensief worden gebruikt. Het budget voor de verbouwing liet het daarnaast niet toe om het hele gebouw even intensief aan te pakken. Voor ons lag er de uitdaging om een ontwerp te maken dat met gerichte ingrepen op de juiste plekken een maximaal effect bereikt.

 

DE BESTAANDE PLEK

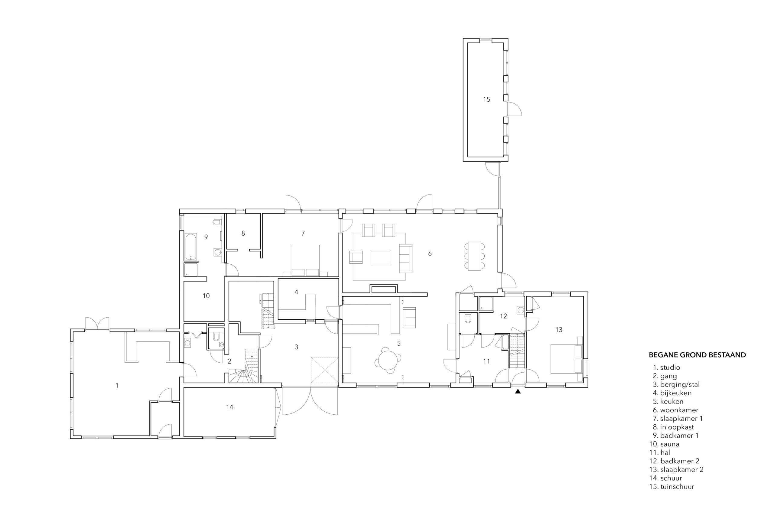
De woning bestaat uit een klein oorspronkelijk woonhuis met daaraan vast een enorme stal, die eerder al is omgebouwd tot woonruimte. De stal heeft verschillende houten aanbouwen; een schuurtje aan de voorzijde en een gîte aan de zijkant.

Het gedeelte van de woning dat de meeste prioriteit had in de verbouwing was de linker helft van de oorspronkelijke stal. Dit gedeelte van het huis was onlogisch en hokkerig ingedeeld. Ter plaatste van de oude staldeuren zat een ongeïsoleerde schuur, in open verbinding met de grote zolder.

Het rechter gedeelte van de stal was qua opzet goed, met keuken aan de voorzijde en woonkamer aan de achterzijde. Ondanks de oppervlakte voelden de ruimtes echter vrij klein. De keuken miste connectie met buiten en andere ruimtes in het huis. De woonkamer was laag en het fantastische vergezicht aan de achterzijde werd te weinig ervaren door de kleine ramen.

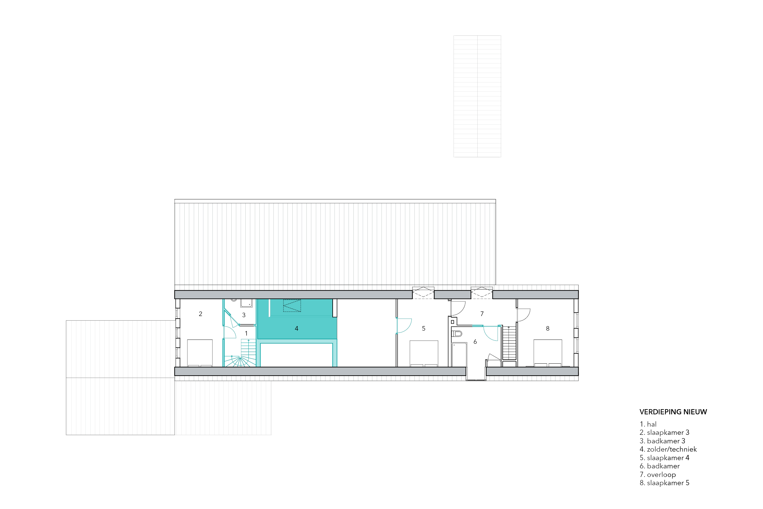
In het oorspronkelijke woonhuis bevonden zich al meerdere kleine slaapkamers en een badkamer. Hier zat ook de voordeur van de woning met een klein halletje.

DE INGREPEN

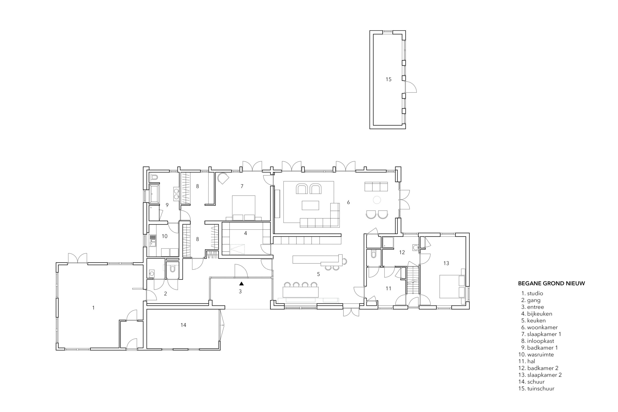
Voor de verbouwing legden we de nadruk op de oorspronkelijke stal. Deze zal, als centrum van de woning, gebruikt worden als primair leefgedeelte. Het oorspronkelijke woonhuis wordt gastenverblijf, waardoor hier nagenoeg niets aan de indeling veranderd hoefde te worden. In verband met het incidentele gebruik, kozen we ervoor om dit gedeelte niet extra te isoleren en alleen de slechte kozijnen te vervangen. De gîte zal gebruikt worden als atelier.

We verlegden de hoofdentree van de woning naar het gedeelte van het gebouw dat in de slechtste staat was. Ter plaatse van de bestaande schuurdeuren is een verdiepte entreenis gemaakt. Door deze aan alle kanten van glas te maken ontstaat een ruimtelijke entree die de verbinding vormt tussen keuken, atelier en slaapvertrekken. De nis is helemaal doorgetrokken tot aan het dak, hier ervaar je de oorspronkelijke houten kap met stro-isolatie. Ook de houten spantconstructie is blootgelegd, nu zichtbaar langs de gehele zichtlijn van keuken naar atelier.

De achterzijde van de stal is een lagere uitbouw zonder verdieping erboven. Hier worden woonkamer en slaapkamer gevestigd, dus zijn hoge isolatiewaardes van gevel en dak belangrijk. We verwijderden het verlaagd plafond en er is er een nieuwe geïsoleerde dakconstructie met een iets flauwere dakhelling gemaakt. De gehele achtergevel werd vernieuwd. We maakten een ontwerp met een strakke ritmiek van houten kolommen, met daartussen dichte houten delen en verdiepingshoge ramen.

 

HET RESULTAAT

Door het verplaatsen van de entree en het slim herindelen van slechts een aantal ruimtes, is een logische en ruimtelijke plattegrond ontstaan. Er zijn in het grote complex duidelijk verschillende gebruikszones gedefinieerd, elk met hun eigen comfortniveau, die toch met elkaar in verbinding staan.

Door de lange zichtlijn vanuit de keuken naar het atelier hebben de ruimtes aan de voorzijde een fijn open karakter gekregen. De woonkamer voelt ruim en luchtig door het hoge plafond. De grote ramen en openslaande deuren aan de achterzijde leggen de verbinding met de tuin.

De nieuwe gedeeltes proberen de oorspronkelijke architectuur niet te imiteren, maar zijn juist als contrast een strakke, moderne toevoeging. Een nieuwe tijdlaag die de vorige weer extra laat glanzen.

- CONCEPT -

- OUDE SITUATIE -

- 3D IMPRESSIES -

- PLATTEGRONDEN -