Renovatie de Bolder - een warm welkom voor de gasten en een fijne werkplek voor het personeel

JAAR: 2024-2025

PLAATS: OOST-VLIELAND

PROGRAMMA: RECEPTIE & KANTOREN

BVO: 675 m2

STATUS: IN UITVOERING

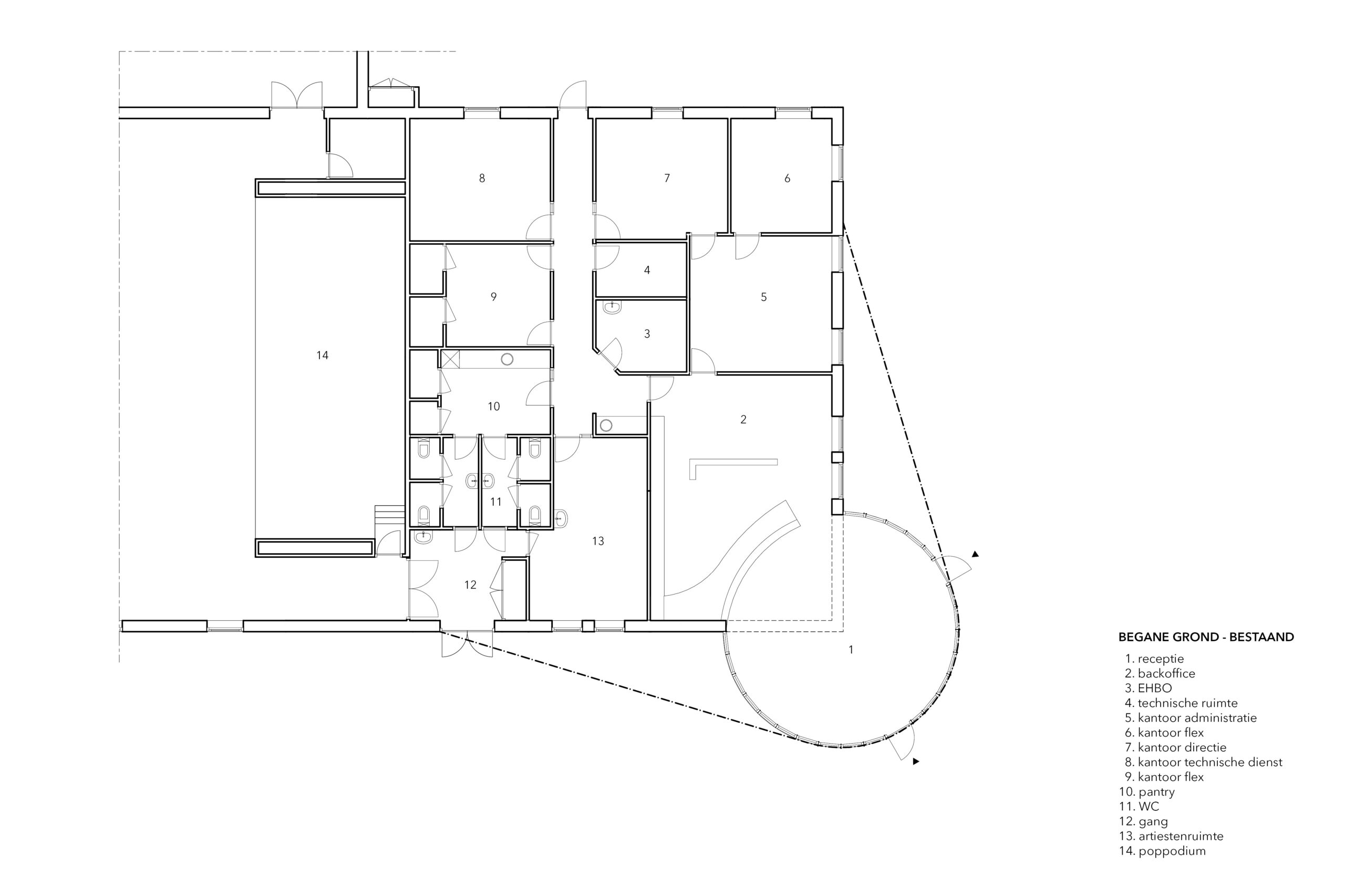
In 2022 is fase 1 van de vernieuwing van het entreegebied van Kampeerterrein Stortemelk opgeleverd. Deze bestond uit een nieuw personeelsgebouw, personeelswoningen en de Stortemelk Kampwinkel & Koffietent. In 2024 is BRANDVRIES begonnen met de uitwerking van fase 2; de verbouwing van het voorste gedeelte van het iconische campinggebouw “de Bolder”, waar de receptie en kantoren zijn gevestigd.

 

De huidige receptie is een latere toevoeging (anno 2000) aan het oorspronkelijke gebouw uit de jaren ’50. Deze receptie heeft niet de vriendelijke, uitnodigende uitstraling die voor de ontvangst van de camping zo gewenst is. Het oorspronkelijke gebouw wordt gerenoveerd en verduurzaamd, waarbij het ronde receptie-volume wordt verwijderd en vervangen door een nieuwe aanbouw met luifel.

 

Met het ontwerp bouwen we voort op het concept van het luifellandschap aan het plein, waarmee met de kampwinkel al een eerste stap is gezet.

De constructie van gelamineerde houten spanten is familie van de luifel aan de overzijde, maar heeft toch ook zijn eigen karakter doordat de spanten nu deels in de gevel staan en ‘uitwaaieren’. Door de luifels aan weerszijden van het plein ontstaat een prettige tussenruimte, een fijne beschutte plek waar de menselijke schaal is teruggebracht. Het overstek van de nieuwe Bolder-luifel wordt smaller richting noordzijde en is erop voorbereid dat er in de toekomst op doorgebouwd kan worden, met een verdere uitgebreiding richting concertzaal en restaurant.

 

Deze nieuwe stap in de vernieuwing van het entreegebied draait niet alleen om een warm welkom voor de gasten, maar gaat ook over het maken van een fijne werkplek. In een workshop met een groot deel van het vaste personeel hebben we in een vroeg stadium samen gepuzzeld op de beste indeling van het gebouw en gebrainstormd over de nadere uitwerking van het ontwerp. De donkere, te krappe werkplekken maken plaats voor een licht, vrolijk en fris interieur waar elke afdeling zijn eigen plek heeft.

 

In 2025 zal in eerste instantie de renovatie en uitbreiding van het gebouw op de begane grond uitgevoerd worden. De optopping, waar een kantine, dakterras en diverse vergaderruimtes gevestigd zijn, zal in een later stadium worden toegevoegd. Daarna kan ook de definitieve inrichting van het plein worden vormgegeven, waarvan vergroening een centraal thema is. Zo gaan we stap voor stap naar een steeds passender, fijner en duurzamer hart van de camping.

- IMPRESSIES -

- TEKENINGEN -