Parel in stadscentrum Rotterdam

JAAR: 2021

PLAATS: Rotterdam

PROGRAMMA: Woonhuis

BVO: 340 m2

STATUS: Gerealiseerd

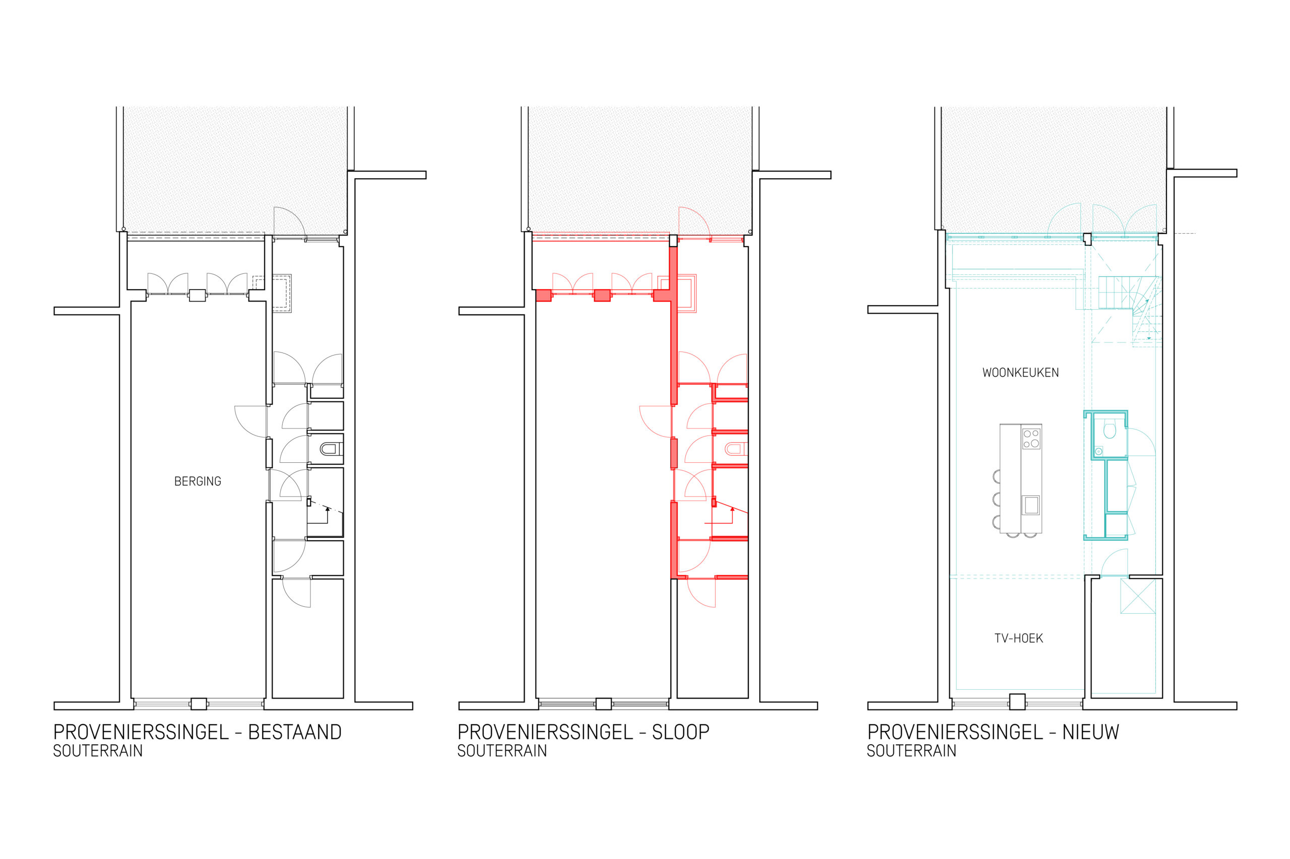
BRANDVRIES heeft het ontwerp voor een hoogwaardige renovatie van een 19e eeuwse stadsvilla aan de Provenierssingel in Rotterdam verzorgd. De uitvoering kwam tot stand in samenwerking met vakman Erik Bouwmeester. De kwaliteit van de funderingen in deze buurt is vaak in slechte staat, zo ook bij deze woning. Door het bestaande souterrain uit te diepen in combinatie met funderingsherstel en een nieuwe betonbak, is een geheel nieuwe woonverdieping ontstaan. Deze nieuwe verdieping heeft het mogelijk gemaakt ruimtes te creëren die het bestaande woonhuis niet toelieten. De oude keuken was naar de huidige maatstaven veel te klein, deze is verhuisd naar het souterrain waar nu ruimte is ontstaan voor een complete woonkeuken.

Op de plek van de oude keuken verbindt een een vide met een nieuwe stalen trap bestaand en nieuw met elkaar.

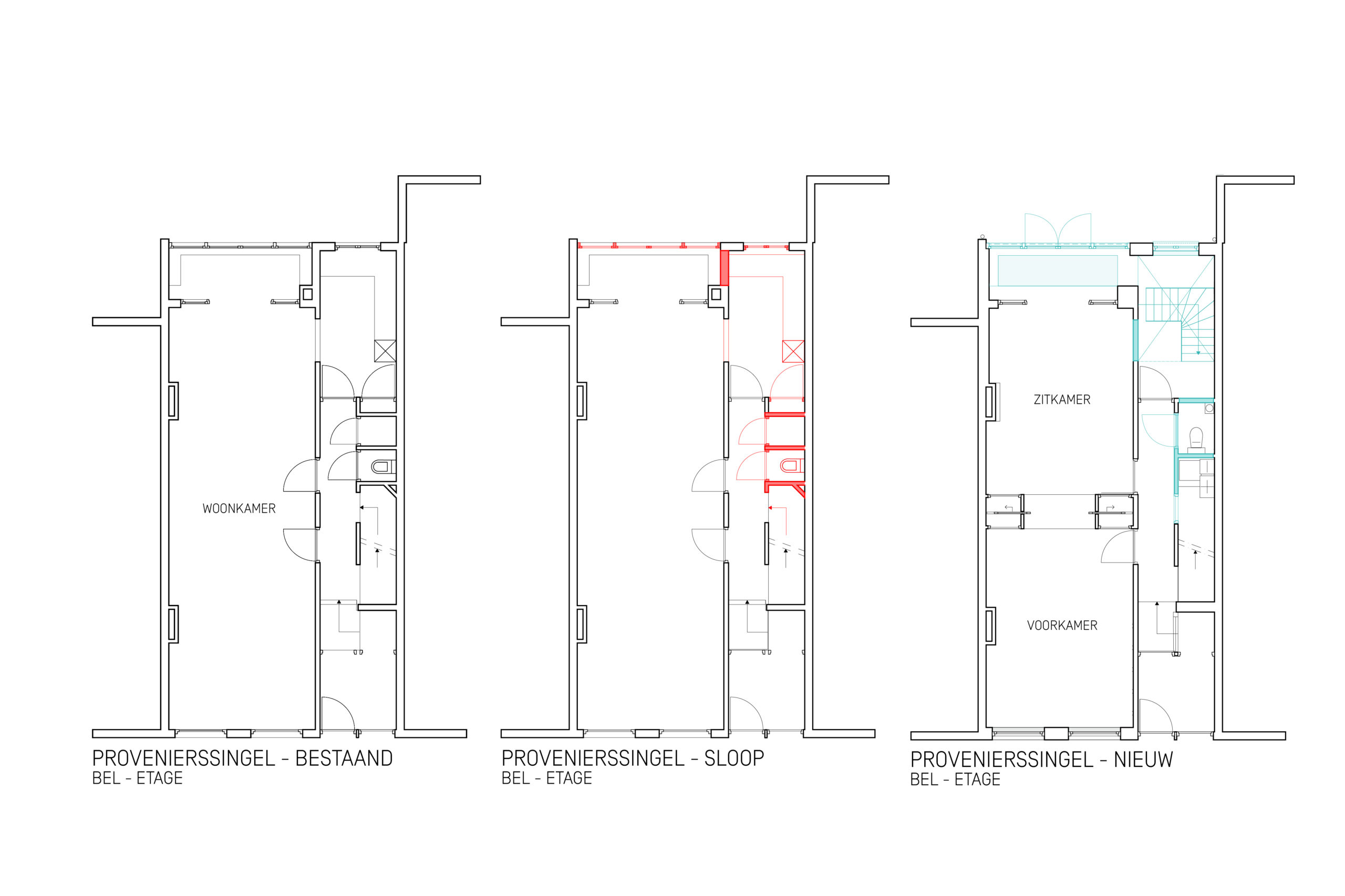
Waar het nieuwe souterrain een  stoere, loft-achtige uitstraling heeft gekregen, zijn op de overige verdiepingen authentieke details in ere hersteld. Zo is de kamer en-suite teruggebracht op de begane grond en zijn bestaande lambriseringen voor de verwarmingen hersteld en teruggebracht naar originele profileringen. Het nieuwe ontwerp voor de badkamers sluit op een eigentijdse manier aan bij de klassieke uitstraling van de gangen.

De gehele achtergevel is grondig gerenoveerd; glas-in-lood is in ere hersteld en draaiende delen zijn met authentieke profilering teruggebracht, maar wel geschikt voor dubbele beglazing. De serre is omgevormd tot een frans balkon, voor veel contact met de tuin. Het souterrain krijgt een nieuwe achtergevel met een grote vouw-schuifwand; zo wordt de grote woonkeuken in een handomdraai bij de tuin betrokken.