Boerenwoning met een knipoog naar het verleden

JAAR: 2021-2022

PLAATS: Zoeterwoude

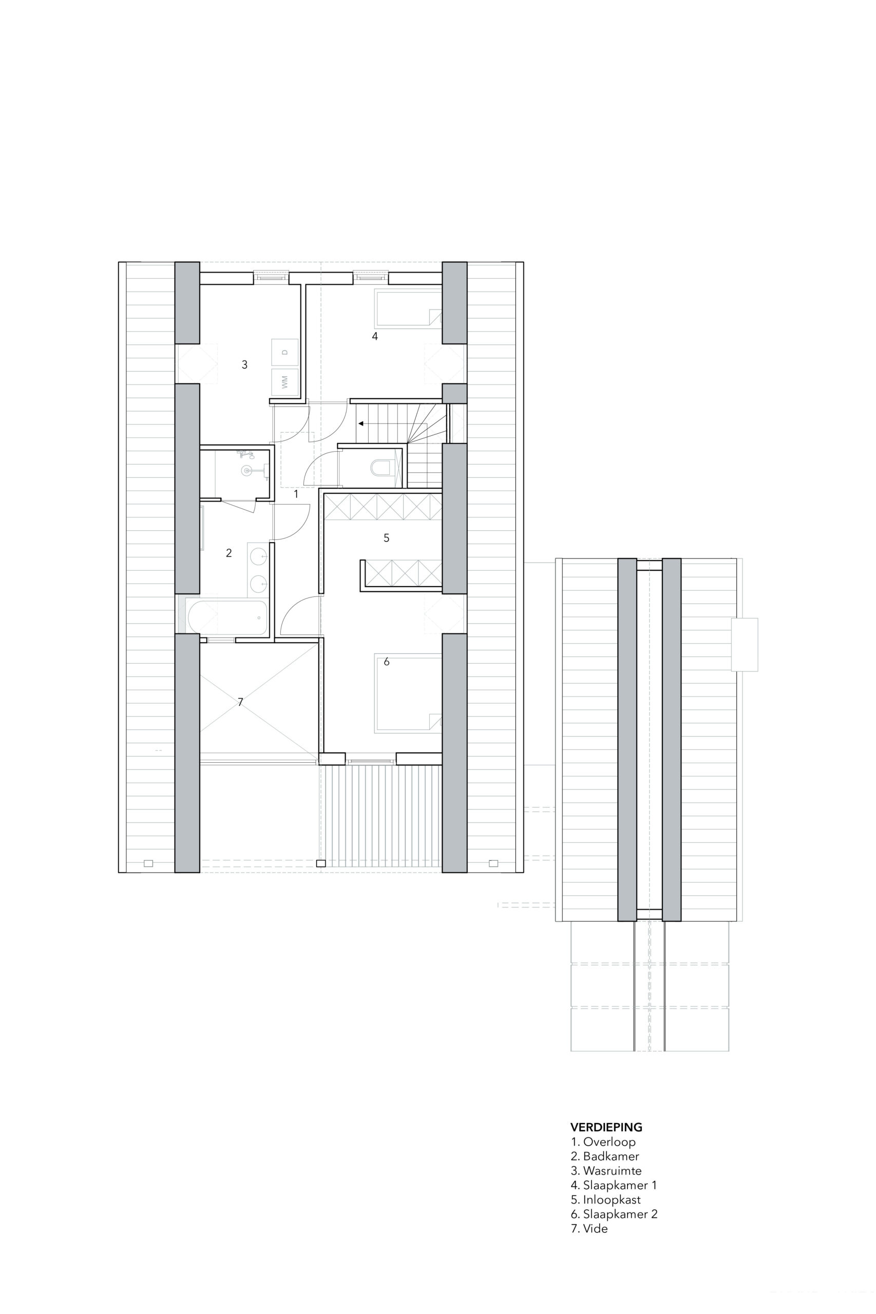
PROGRAMMA: Woonhuis

BVO: 130 m2

STATUS: Gerealiseerd

STUDIO BRANDVRIES kreeg in 2021 opdracht voor het ontwerpen van een vrijstaand woonhuis op één van de vrije kavels die onderdeel zijn van het grotere plan Zwethof in Zoeterwoude. Dit plan kenmerkt zich door een open structuur, verdeeld over verschillende erf-eilanden. Deze reageren hiermee op het reeds aanwezige en kenmerkende open slagenlandschap van de Zwet- en Grote Blankaarpolder. Lange kavels, weidse uitzichten en boerensloten zijn de karakteristieken van het plan. Op de zogenaamde erf-eilanden is een verdeling gemaakt in hoofdwoningen en schuurwoningen. De betreffende vrije kavel heeft als typologie hoofdwoning.

In de wijk wordt nog volop gebouwd, wanneer het groen en water rondom is aangelegd zal het huis nog beter tot zijn recht komen. Maar hieronder toch alvast wat eerste beelden om te delen.

De woning bestaat uit een woonhuis en een schuur, verbonden door een transparant koppelstuk met lichtstraat.

Het ontwerp is bescheiden en landelijk, met aandacht voor meer uitgesproken details zoals de stevig aangezette natuurstenen raamdorpels en veranda’s met een eikenhouten balken constructie. De voorgevel vormt met de raamverdeling en detaillering van houten ‘rollagen’ een eigentijdse interpretatie van het ouderlijk huis “boerderij Rustdam” in de nabije omgeving.

De woning is volledig opgebouwd uit prefab houtskeletbouw elementen, uitvoering door KVG Huizen in Hout.

- FOTO'S -

- TEKENINGEN -